ostatnia modyfikacja: 2026-03-20 15:54:39
INFOLINIA: +48/12 357-27-57, 18/549-20-12, +48 602 150-756
Kraków,
Wieliczka,
Skawina,
Niepołomice,
Myślenice,
pow. krakowski,
pow. wielicki,
pow. myślenicki,
Gdów,
Dobczyce,
Nowy Targ,
pow. nowotarski,
Zakopane,
pow. tatrzański
Podobne oferty
Promowane oferty

Jako pierwsi w Małopolsce Stosujemy
KARTĘ PRAW KLIENTA !!!
Sprzedaż
2 - pokojowe
(numer oferty: 49330)
Pachońskiego-okolice
Krakow /Prądnik Biały
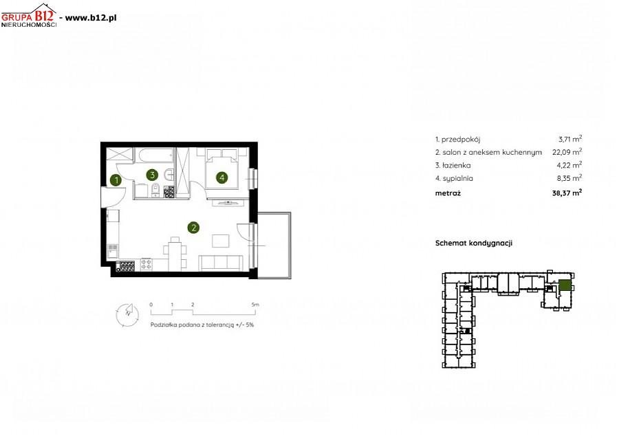
38.00 m2
627 000 zł
(16 500 zł/m2 )
Uważasz, że cena jest za wysoka?
rodzaj budynku: nowe budownictwo
dodatki do lokalu: balkon, winda
piętro: III z IV
standard mieszkania: stan deweloperski
ogrzewanie: centralne miejskie
dojazd: tramwaje, autobusy
POKOJE:
liczba pokoi: 2
KUCHNIA:
informacje dodatkowe: aneks
OKAZJA ! - PROMOCJA NA TO MIESZKANIE W MARCU. CENA OFERTOWA 703 000, RABAT 76 000, CENA PROMOCYNA 627 000.
MIESZKANIE 38M2, 2-POK., PIĘTRO 3/4. MIEJSCE W GARAŻU PODZIEMNYM GRATIS.
Okolice ulic Opolskiej i Pachońskiego, ok 10 minut pieszo od przystanku tramwajowego P+R, tylko 6 przystanków tramwajem od Galerii Krakowskiej. - BARDZO DOBRA INWESTYCJA NA WYNAJEM.
Zakup bezpośrednio od dewelopera - bez podatku PCC, bez prowizji.
Budowa w trakcie realizacji, wpłaty w/g harmonogramu, przekazanie mieszkań w 2027r.
Zapraszamy, tel. 602 150 609, informacje i oglądanie w godz 10-18 / również w soboty i niedziele
W tej inwestycji posiadamy do sprzedaży również inne mieszkania 2-pokojowe.
oglądano 33 razy dodane: 2026-03-17 modyfikowane: 2026-03-18
Osoba koordynująca:
Sebastian Porwisz - Pośrednik w obrocie nieruchomościami - licencja nr 16954
12/357-27-57
GSM tel.kom. 602 150-609
Pośrednik w obrocie nieruchomościami nadzorujący ofertę Konrad Koniarz - licencja 3332.
GRUPA B12 - od 1997 roku pracujemy na nasz wspólny sukces.
Jeśli są Państwo zainteresowani tą ofertą prosimy wypełnić i wysłać formularz :
Osoby oglądające powyższą ofertę oglądały także
powiadom znajomego o tej ofercie: