Chcę obejrzeć »
Sprzedaż
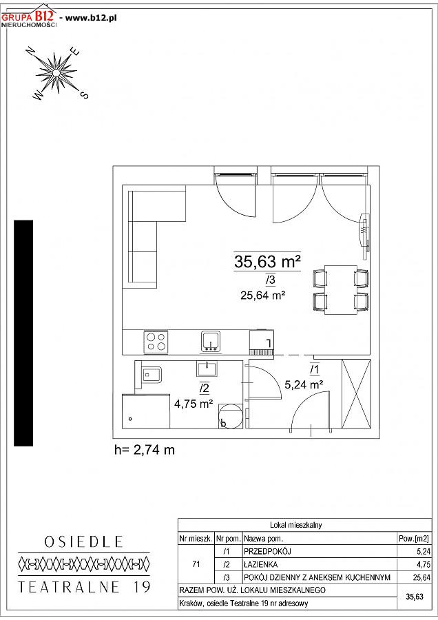
1 - pokojowe
(numer oferty: 49342)
os. Teatralne
Krakow /Nowa Huta (osiedla) /Os. Teatralne
35.63 m2
587 895 zł
(16 500 zł/m2 )
forma prawna: Odrębna własność
rodzaj budynku: blok, nowe budownictwo, z 2025 roku
standard budynku: bardzo wysoki
dodatki do lokalu: domofon, drzwi antywłamaniowe, monitoring, winda, nie ma balkonu, nie ma gazu
zieleń: dużo
hałas: cicho
w pobliżu: park, sklepy, usługi, teatr
piętro: I z V
rozkład mieszkania: jednostronny, ustawne, jasny
standard mieszkania: do wykończenia
ogrzewanie: centralne miejskie
dojazd: bardzo dobry, tramwaje, autobusy
dostępne: zaraz
rodzaj budynku: blok, nowe budownictwo, z 2025 roku
standard budynku: bardzo wysoki
dodatki do lokalu: domofon, drzwi antywłamaniowe, monitoring, winda, nie ma balkonu, nie ma gazu
zieleń: dużo
hałas: cicho
w pobliżu: park, sklepy, usługi, teatr
piętro: I z V
rozkład mieszkania: jednostronny, ustawne, jasny
standard mieszkania: do wykończenia
ogrzewanie: centralne miejskie
dojazd: bardzo dobry, tramwaje, autobusy
dostępne: zaraz






















